物件情報◎広野町宮谷400万円【日当たり・眺望良好】【2025-10-20更新】 | 京都の不動産・売却のことならセンチュリー21ライフ住宅販売
-
物件情報◎広野町宮谷400万円【日当たり・眺望良好】
記事更新日:2025-10-20こんにちは!
本日の物件紹介です
物件概要
広野町宮谷
住所:京都府宇治市広野町宮谷
物件概要
-
土地面積:167.43m² (50.64坪)
-
建物面積:72.93m²(22.06坪)
-
築年月:昭和50年8月築
-
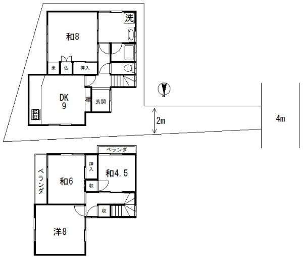
間取り:4DK
-
■自然豊かな閑静な住宅街です
■高台につき、日当たり眺望良好
■リフォームのご相談、承ります
※土砂災害警戒地域(急斜面)
※増築未登記あり
アクセス-
・奈良線 新田駅 徒歩13分
・近鉄京都線 大久保駅 徒歩15分
お問い合わせ
電話をかける(携帯・PHS可) 0120-121-021
「ホームページを見た」とお伝え下さい。
間取り

外観

センチュリー21 ライフ住宅販売(駐車場有り
阪急『大宮駅』徒歩5分・市バス『大宮松原停』徒歩2分)フリーダイヤル▶ -
-
最新の記事
- 物件情報◎【測入居可能】アメニティ山科駅前5680万円【R7年改装済み!】
- 【GW休業のお知らせ】
- 物件情報◎【中古一戸建て】景勝町1980万円【3LDK】
- 物件情報◎【中古一戸建】小坂町2,280万円【4DK・駐車場付き】
- 物件情報◎【中古一戸建】聚楽廻中町3,280万円【南向き】
- 物件情報◎【ペット可】アバンエスパス四条5780万円【R8年5月フルリフォーム完成予定!】
- 2026年2月21日(土)2月22日(日)開催「京都の空き家と相続の相談窓口」無料相談会
- 物件情報◎【中古テラスハウス】常盤西町580万円【3DK】
- 春の住み替えフェア始まりました!
- 物件情報◎【戸建て】太秦樋ノ内町 2,280万円
- もっとみる
月別
- 2026年05月(1)
- 2026年04月(3)
- 2026年03月(2)
- 2026年02月(2)
- 2026年01月(2)
- 2025年12月(3)
- 2025年11月(1)
- 2025年10月(11)
- 2025年09月(7)
- 2025年08月(11)
- 2025年07月(9)
- 2025年06月(8)
- 2025年05月(7)
- 2025年04月(4)
- 2025年03月(6)
- 2025年02月(4)
- 2025年01月(3)
- 2024年12月(6)
- 2024年11月(3)
- 2024年10月(6)
- 2024年09月(5)
- 2024年08月(8)
- 2024年07月(3)
- 2024年06月(6)
- 2024年05月(3)
- 2024年04月(6)
- 2024年03月(7)
- 2024年02月(6)
- 2024年01月(5)
- 2023年12月(7)
- 2023年11月(6)
- 2023年10月(9)
- 2023年09月(5)
- 2023年08月(6)
- 2023年07月(4)
- 2023年06月(8)
- 2023年05月(7)
- 2023年04月(5)
- 2023年03月(3)
- 2023年02月(3)
- 2023年01月(5)
- 2022年12月(5)
- 2022年11月(4)
- 2022年10月(6)
- 2022年09月(2)
- 2022年08月(3)
- 2022年07月(2)
- 2022年06月(5)
- 2022年05月(4)
- 2022年04月(5)
- 2022年03月(10)
- 2022年02月(8)
- 2022年01月(6)
- 2021年12月(5)
- 2021年11月(10)
- 2021年10月(11)
- 2021年09月(8)
- 2021年08月(20)
- 2021年07月(17)
- 2021年06月(18)
- 2021年05月(20)
- 2021年04月(21)
- 2021年03月(18)
- 2021年02月(16)
- 2021年01月(19)
- 2020年12月(8)
- 2020年11月(18)
- 2020年10月(21)
- 2020年09月(22)
- 2020年08月(4)
- 2020年07月(3)
- 2020年06月(2)
- 2020年05月(3)
- 2020年04月(2)
- 2020年03月(10)
- 2020年02月(12)
- 2020年01月(6)
- もっとみる
- アクセス
- お車でお越しの場合 「大宮通高辻」交差点 北西門
電車でお越しの場合 阪急京都線「大宮駅」より南へ約400m
- 〒600-8385 京都市下京区五坊大宮町96-6
TEL:0120-121-021
9:00~19:00(定休日:水曜日、第1・第3火曜日) - 総合お問い合わせ
Copyright(C) Life jutaku hanbai Co., Ltd All Rights Reserved.










