浄土寺真如町 一般物件|京都の不動産・売却のことならセンチュリー21ライフ住宅販売

>
>
不動産情報一覧

浄土寺真如町 一般物件の検索結果一覧

種別で絞り込む 新築一戸建て 中古一戸建て マンション 土地 投資
1件中1〜1件を表示
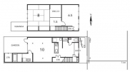
中古一戸建て

桜と紅葉の名所として名高い真如堂の正面に建つ京町家。 床暖房完備で冬も快適。セカンドハウスや貸家としてもご検討ください。

価格 6,200万円 
所在地 京都府京都市左京区浄土寺真如町 5-7
交通 京阪鴨東線 神宮丸太町駅 徒歩24分
間取り 2SLDK
建物面積 85.61u 土地面積 75.66u
築年月 1929年9月 建物構造 一戸建て/木造
1枚  
※登録・更新された物件情報はリアルタイム反映ではありません。数時間毎の反映となります。


STAFF BLOGスタッフブログ

INFORMATIONインフォメーション

開催予定のイベント・セミナー
  • 無料会員登録
  • 売却のご相談

お客様へ

不動産情報はセンチュリー21ライフ住宅販売にお任せください!センチュリー21ライフ住宅販売では不動産情報を豊富にご用意しております。 新築戸建て・土地・マンションをお探しの方はぜひセンチュリー21ライフ住宅販売までお問い合わせください。信頼あるスタッフがあなたのマイホーム探しのお手伝いをさせて頂きます。

PAGE TOP

  • アクセス
  • お車でお越しの場合 「大宮通高辻」交差点 北西門
    電車でお越しの場合 阪急京都線「大宮駅」より南へ約400m
  • 〒600-8385 京都市下京区五坊大宮町96-6
    TEL:0120-121-021
    9:00〜19:00(定休日:水曜日、第1・第3火曜日)
  • 総合お問い合わせ
Copyright(C) Life jutaku hanbai Co., Ltd All Rights Reserved.