| 価格 | 8,480万円 ![]() |
||||||
|---|---|---|---|---|---|---|---|
| 所在地 | 京都府京都市下京区不明門通五条下る上平野町 445
この地域周辺の物件を見る |
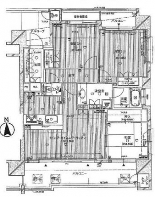
専有面積 | 75.06m2 | 間取り | 3LDK (-) | ||
| 交通 | 京都市営烏丸線 五条/徒歩1分
京都市営烏丸線 四条/徒歩9分 京阪本線 清水五条/徒歩10分 |
管理費等 | 12,180円 | 修繕積立金 | 5,920円 | 所在階/階数 | 11階/地上15階建 | 築年月 | 2007年12月築 | バルコニー面積 | 18.67m² |
電話をかける(携帯・PHS可)
0120-121-021
「ホームページを見た」とお伝え下さい。
お問い合わせ番号をお伝えください
RHS-064001-37710
| 特徴 |
|
|---|---|
| セールスコメント | ※売主の契約不適合責任免責 |
| 採光面 | 南 | 取引態様 | 仲介 |
|---|---|---|---|
| 現況 | 居住中 | 引渡し | 相談 |
| 総戸数 | 41戸 | 構造 | RC造 |
| テラス面積 | - | 専用庭面積 | - |
| 駐車場 | なし | 駐輪場 | - |
| 建物権利 | - | 土地権利 | 所有権 |
| 用途地域 | - - - | 管理態様 | 管理形態:委託(通勤) 管理組合:なし 管理会社:エヌエス管理株式会社 |
| 小学校区 | 下京中学校/ | 中学校区 | 洛央小学校/ |
| 情報更新日 | 2026年03月06日 | 次回更新日 | 2026年03月20日 |
電話をかける(携帯・PHS可)
0120-121-021
「ホームページを見た」とお伝え下さい。
お問い合わせ番号をお伝えください
RHS-064001-37710
| 年利率 | % |
||
|---|---|---|---|
| ボーナス払い | 返済年数 | ||
| 頭金 | 直接入力する | 万円 | |

毎月のご返済額 |
ボーナス(×年2回) |
物件価格8,480万円 |
電話でお問い合わせ
株式会社ライフ住宅販売
|
電話をかける 0120-121-021 ※「ホームページを見た」とお伝えください。 |
お問い合わせ番号をお伝えください RHS-064001-37710 |
|---|
■地下鉄「五条」駅より徒歩1分 ■東南角住戸
■9階部分につき、陽当り・眺望良好 ■両面バルコニー