| 価格 | 5,480万円値下がり ![]() |
||||
|---|---|---|---|---|---|
| 所在地 | 京都府京都市上京区真如堂突抜町
この地域周辺の物件を見る |
土地面積 | 89.78m² (27.16坪) | 建物面積 | 94.77m2 |
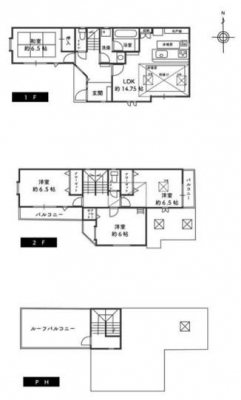
| 築年月 | 2004年11月築 | 間取り | 4LDK (LDK14.75/和室6.5/洋室6.5/洋室6.5/洋室6) | ||
| 交通 |
京都市営烏丸線 今出川/徒歩16分
|
||||
電話をかける(携帯・PHS可)
0120-121-021
「ホームページを見た」とお伝え下さい。
お問い合わせ番号をお伝えください
RHS-064001-37732
| 特徴 |
|
|---|---|
| セールスコメント | 物件前に植木あり |
| 採光面 | 西 | 構造/階数 | 木造/地上2階建 |
|---|---|---|---|
| 建ぺい率 | 60(%) | 容積率 | 164(%) |
| 駐車場 | なし | 現況/引渡し | 空家/相談 |
| 土地権利 | 所有権 | 私道負担面積 | - |
| 接道状況 | 接道: 西 公道 道路幅: 3.7m | 用途地域 | 第二種住居地域
|
| セットバック | - | 法令上の制限 | - |
| 地目 | 宅地 | 地勢 | 平坦 |
| 建築確認番号 | 都市計画 | 市街化区域 | |
| 小学校区 | 上京中学校/ | 中学校区 | 新町小学校/ |
| 取引態様 | 仲介 | ||
| 情報更新日 | 2026年02月08日 | 次回更新日 | 2026年02月22日 |
電話をかける(携帯・PHS可)
0120-121-021
「ホームページを見た」とお伝え下さい。
お問い合わせ番号をお伝えください
RHS-064001-37732
| 年利率 | % |
||
|---|---|---|---|
| ボーナス払い | 返済年数 | ||
| 頭金 | 直接入力する | 万円 | |

毎月のご返済額 |
ボーナス(×年2回) |
物件価格5,480万円 |
電話でお問い合わせ
株式会社ライフ住宅販売
|
電話をかける 0120-121-021 ※「ホームページを見た」とお伝えください。 |
お問い合わせ番号をお伝えください RHS-064001-37732 |
|---|
■広々4LDK
■ペントハウス階のある戸建
■駐車スペースございます!